Контакты

plans_icon

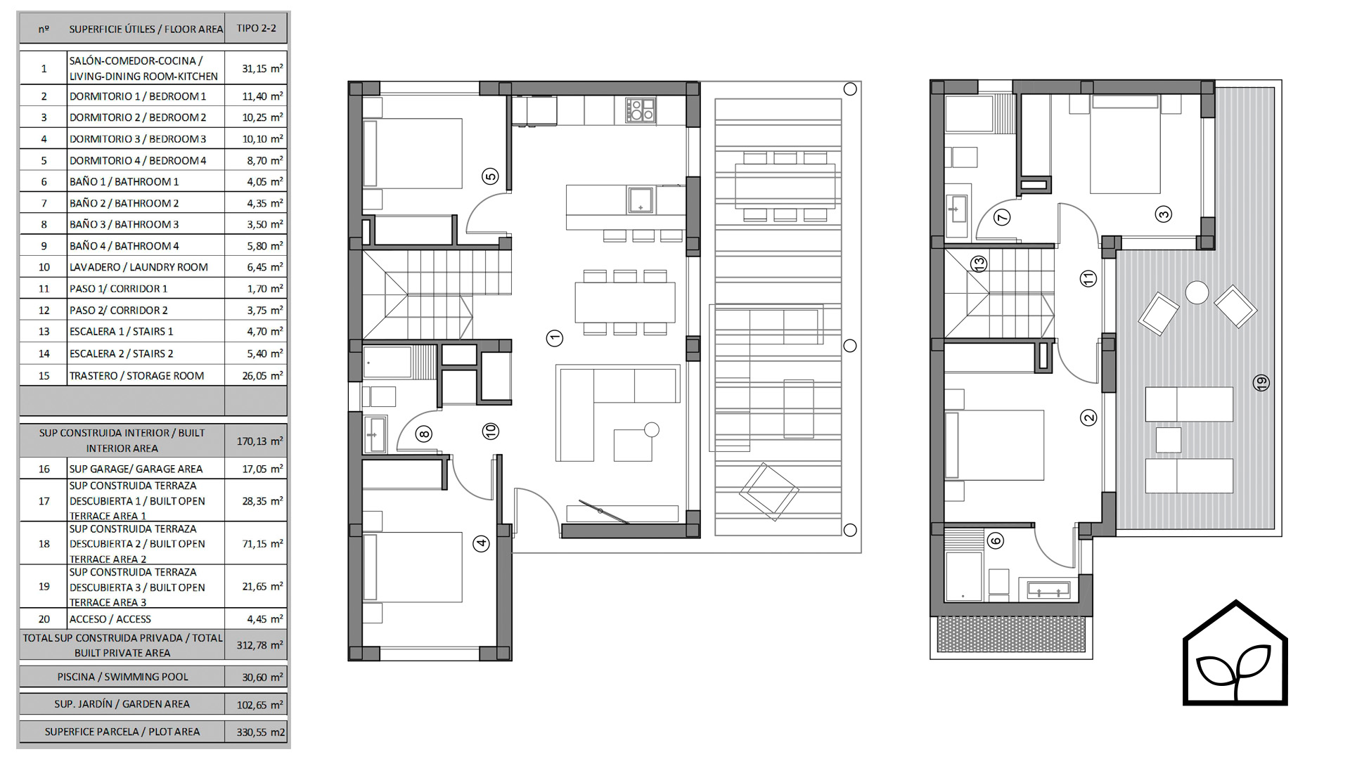
Планы

plans_icon

Видео

Цена

от 875.000 €

Новое строительство

ID: 0020AMB509

Location

Вилла / Коттедж

Costa Blanca / Finestrat

4

4

312 m2

330 m2

Индивидуальный дом с великолепным видом на море, Бенидорм на фоне Serra Gelada.

Четыре спальные комнаты, одна из которых является suite с собственной ванной комнатой. Салон-столовая-кухня с полностью экипированной американской кухней площадью 31,15 м2. Две спальни на втором жилом уровне имеют доступ на просторную террасу 21,65 м2. Всего в доме четыре ванные комнаты. Также предусмотрены кладовая, прачечная и подвальное многофункциональное помещение 26 м2 с возможностью использования как домашнего кинотеатра, SPA-зоны, винного погреба или тренажерного зала. Зона для паркинга одного автомобиля. Участок 330,55 м2. Бассейн 30,60 м2.

С террас, из окон и с территории участка открываются виды на море и окружающий живописный ландшафт. Светлые и просторные интерьеры формируют ощущение открытого и гармоничного жилого пространства. Двойные алюминиевые стеклопакеты с терморазрывом обеспечивают комфорт и энергоэффективность. Планировочное решение продумано для комфортного проживания большой семьи, позволяя сочетать функциональность повседневной жизни с высоким уровнем приватности. Кухня выполнена с использованием качественных материалов и оснащена бытовой техникой. Ванные комнаты полностью оборудованы. Во всех спальнях предусмотрены встроенные шкафы. Благоустроенный участок.

Респектабельный район с туристической инфраструктурой мирового уровня. Развитая городская среда Бенидорма и Финестрата, песчаные пляжи и три поля для гольфа находятся всего в 10 минутах на автомобиле. В непосредственной близости расположены спортивные комплексы, частные международные школы, государственные и частные клиники, торговый центр, а также великолепная набережная и Parque Natural de la Serra Gelada. Около 35 минут до Аликанте на автомобиле. Помимо этого, удобное сообщение обеспечивается линией L1 Tram de Alicante, которая позволяет быстро добраться как до столицы провинции, так и до других городов региона.

По запросу консультанты Novaspace проконсультируют вас по всем аспектам приобретения данной недвижимости, а также подберут варианты с аналогичными или альтернативными характеристиками с учетом индивидуальных требований клиента, бюджета, локации, архитектурных параметров и инвестиционных задач.

rooms_icon
check-icon

Спален : 4

check-icon

Ванных : 4

check-icon

Кладовая : 1

check-icon

Прачечная : 1

check-icon

Парковка : 1

check-icon

Сад

check-icon

Бассейн : Cобственный

area_icon
check-icon

Площадь застроенная : 312 m2

check-icon

Площадь террас : 71 m2

check-icon

Площадь гостиной : 31 m2

check-icon

Площадь участка : 330 m2

energetics_icon
check-icon

Энергоэффективность : A

check-icon

Тип отопления : Электричество

check-icon

Кондиционер

check-icon

Ориентация : Восток

options_icon
check-icon

Бронированная дверь

check-icon

Панорамное остекление

check-icon

Домофон

check-icon

Состояние : Новое строительство

location_icon
check-icon

Вид на море

check-icon

Близость к морю (Машина) : 10 мин

check-icon

Общественный транспорт : 20 мин

data_icon
check-icon

Кол-во этажей : 3

check-icon

Год постройки : 2027

Aeroport de Alicante - El Altet

Аэропорт

Puerto de Alicante

Порт

Alacant Terminal

Железнодорожный вокзал

Tram Alacant Línea 1 - Cala Finestrat

Трамвай

Playa de Poniente

Platja de La Cala de Finestrat

Пляж

Aqualandia

Aqua Natura

Аквапарк

Huerto del Cura

Ботанический сад

Terra Natura

Mundomar

Зоопарк

Parque natural de la Sierra de Mariola

Massís del Montseny

Parque Natural de la Serra Gelada

Национальный парк

Palmeral de Elche

Misterio de Elche (14 y 15 de agosto) - Basílica de Santa Maria

Объект Всемирного наследия ЮНЕСКО

Plaza de Toros Alicante

Santa Bárbara Castle

Les Fonts d'Algar

Museu de Microminiatures

Достопримечательности

Sierra Nevada Granada

Горнолыжный курорт

Villaitana Golf

Las Rejas Golf

Puig Campana Golf

Гольф клуб

Sierra Bernia School

AIS Altea International School

Elian's British School La Nucía

Частная школа

Centro Comercial La Marina

Торговый центр

Balneario de Archena

Термальный комплекс

Estadio José Rico Pérez

Estadi Olímpic Camilo Cano

Главный стадион

Benidorm Palace

Auditori de la Diputació d'Alacant

Auditori i Centre Cultural de La Nucía

Концертный зал

Teatre Principal d'Alacant

Театр

Terra Mítica

Парк развлечений

Universitat d'Alacant

Университет

Запрос дополнительной информации

ID: 0020AMB509