Contacto

plans_icon

Planos

Precio

desde 915.000 €

Obra nueva

Ref.: 0026AMB530

Location

Villa

Alicante / Costa Blanca

3

3

155 m2

492 m2

Villas exclusivas con piscina privada en Sierra Cortina, el enclave residencial más selecto junto a Benidorm

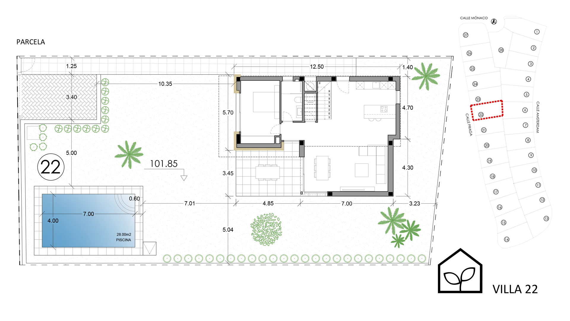
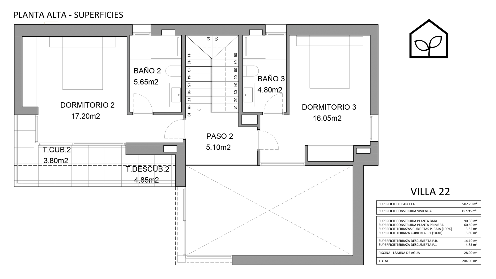
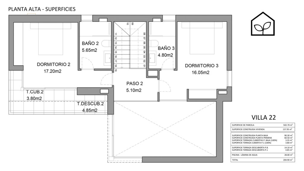
Las viviendas cuentan con tres amplios dormitorios y tres baños. En la planta principal se ubican un dormitorio, un baño, zona de lavandería y un espectacular espacio abierto de salón, comedor y cocina integrada con superficies que oscilan entre 48,45 m² y 51,60 m², concebido como el verdadero núcleo de la vida diaria. La planta superior está destinada a la zona más privada, con dos luminosos dormitorios, dos baños y terrazas propias. Las parcelas, de entre 492 m² y 531 m², incorporan piscina privada de 28 m² y una cuidada zona exterior pensada para el descanso.

La arquitectura responde a una estética mediterránea contemporánea, con líneas limpias, volúmenes equilibrados y una clara apuesta por la luz natural. Los grandes ventanales de suelo a techo potencian la profundidad visual de los interiores y conectan de forma fluida los espacios interiores con terrazas y jardín. La cocina abierta se integra con naturalidad en la zona de día y actúa como punto de encuentro tanto para la vida cotidiana como para recibir invitados. Se entrega completamente equipada con electrodomésticos integrados de última generación y soluciones de almacenaje ergonómicas. Los baños están totalmente equipados, con zonas de ducha y mobiliario de diseño actual.

En la construcción y acabados se han priorizado soluciones orientadas al confort y la durabilidad. La carpintería exterior de aluminio con rotura de puente térmico y acristalamiento de altas prestaciones garantiza un excelente aislamiento térmico y acústico. La puerta de entrada es blindada, aportando un nivel superior de seguridad. Los cerramientos cuentan con sistemas de aislamiento modernos que permiten mantener una temperatura interior estable durante todo el año. El agua caliente sanitaria se produce mediante bomba de calor de alta eficiencia, reduciendo el consumo energético y mejorando la sostenibilidad. Se incorporan soluciones técnicas actuales que facilitan el control del clima interior y la iluminación.

Las parcelas privadas ofrecen un entorno completo para disfrutar del exterior. Amplias terrazas y zonas ajardinadas permiten crear distintos espacios según las necesidades del día a día. La piscina privada se convierte en el elemento central del conjunto exterior, reforzando la sensación de privacidad y calidad de vida. La disposición de las viviendas dentro de cada parcela aporta amplitud visual y un alto grado de intimidad.

Sierra Cortina es una de las zonas residenciales más exclusivas del norte de la Costa Blanca. Destaca por su seguridad, baja densidad edificatoria y alto nivel residencial. Combina tranquilidad y entorno natural con acceso rápido a todos los servicios. En las inmediaciones se encuentran campos de golf, centros deportivos, restaurantes, centros comerciales y espacios wellness. A pocos minutos se sitúan las playas de Benidorm y excelentes conexiones con el aeropuerto de Alicante. Una ubicación que convierte estas villas en una residencia ideal tanto para vivir todo el año como para inversión con sólida proyección de valor.

A petición, nuestro equipo de especialistas le asesorará en todos los aspectos de la adquisición de esta propiedad y seleccionará alternativas con características similares o equivalentes, teniendo en cuenta sus requisitos, presupuesto, ubicación, parámetros arquitectónicos y objetivos de inversión.

rooms_icon
check-icon

Dormitorios : 3

check-icon

Baños : 3

check-icon

Lavadero : 1

check-icon

Aparcamiento : 1

check-icon

Jardín

check-icon

Piscina : Privada

area_icon
check-icon

Sup. construida : 155 m2

check-icon

Superficie de salón : 48.45 m2

check-icon

Sup. de parcela : 492 m2

energetics_icon
check-icon

Eficiencia energética : A

check-icon

Calefacción : Eléctrica

check-icon

Aire Acondicionado

check-icon

Orientación : Suroeste

options_icon
check-icon

Puerta blindada

check-icon

Ventanas panorámicas

check-icon

Interfono

check-icon

Estado : Obra nueva

location_icon
check-icon

Vista al mar

check-icon

A la playa en coche : 9 min

check-icon

Transporte público : 23 min

data_icon
check-icon

Núm. de plantas : 2

Aeroport de Alicante - El Altet

Aeropuerto

Puerto de Alicante

Puerto

Alacant Terminal

Estación de tren

Tram Alacant Línea 1 - Cala Finestrat

Tranvía

Playa de Poniente

Platja de La Cala de Finestrat

Playa

Aqualandia

Aqua Natura

Parque acuático

Huerto del Cura

Jardín botánico

Terra Natura

Mundomar

Zoológico

Parque natural de la Sierra de Mariola

Massís del Montseny

Parque Natural de la Serra Gelada

Parque nacional

Palmeral de Elche

Misterio de Elche (14 y 15 de agosto) - Basílica de Santa Maria

Patrimonio Mundial de la UNESCO

Plaza de Toros Alicante

Santa Bárbara Castle

Les Fonts d'Algar

Museu de Microminiatures

Lugares de interés

Sierra Nevada Granada

Estación de esquí

Villaitana Golf

Las Rejas Golf

Puig Campana Golf

Club de golf

Sierra Bernia School

AIS Altea International School

Elian's British School La Nucía

Colegio privado

Centro Comercial La Marina

Centro comercial

Balneario de Archena

Balneario termal

Estadio José Rico Pérez

Estadi Olímpic Camilo Cano

Estadio principal

Benidorm Palace

Auditori de la Diputació d'Alacant

Auditori i Centre Cultural de La Nucía

Sala de conciertos

Teatre Principal d'Alacant

Teatro

Terra Mítica

Parque de atracciones

Universitat d'Alacant

Universidad

Solicitud de información adicional

Ref.: 0026AMB530