Contacto

plans_icon

Planos

Precio

desde 419.900 €

Obra nueva

Ref.: 0019AMB509

Location

Búngalo

Alicante / Costa Blanca / Finestrat

2

2

90 m2

Amplios bungalós con vistas panorámicas al pie de Sierra Cortina.

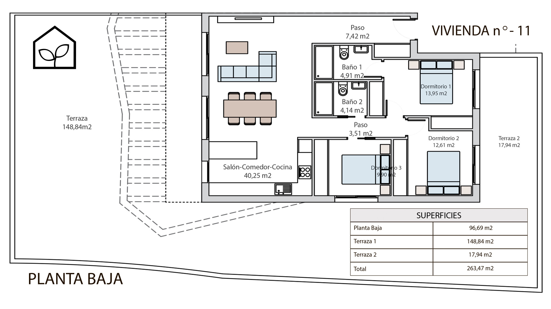
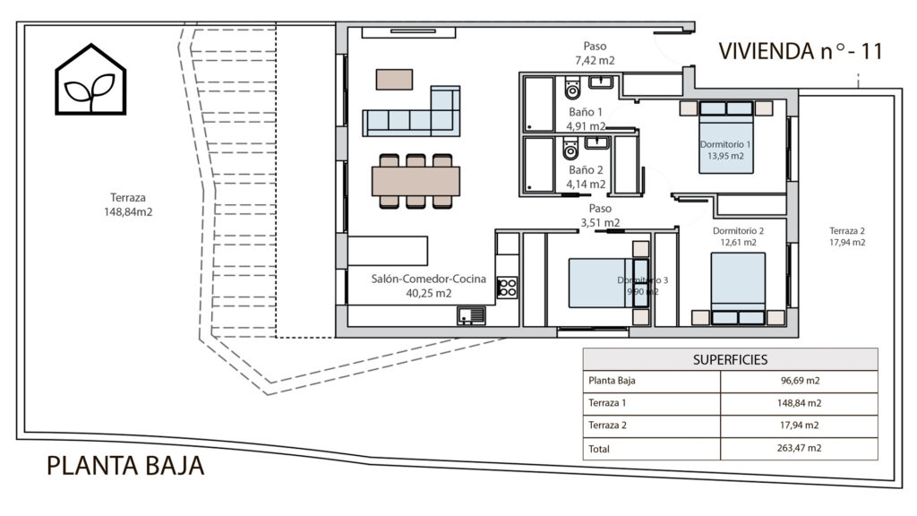
Dos o tres dormitorios dobles. Salón comedor con cocina americana de 40 m². Recibidor. Dos baños. Los bungalós situados en la planta baja disponen de terrazas en la fachada principal y en la parte posterior de la vivienda. Los bungalós situados en la planta superior cuentan con terraza y solárium privado en la azotea del edificio. La superficie de los bungalós de planta baja, sin incluir las terrazas, es de 96,69 m², mientras que la superficie de los bungalós de planta superior es de 90 m². La superficie de las terrazas, según la ubicación del bungaló dentro del conjunto residencial, varía entre 113,59 m² y 166,78 m². Aparcamiento y trastero opcionales.

La prestigiosa urbanización Balcón de Sierra Cortina se sitúa en una posición elevada, lo que permite disfrutar desde las ventanas y terrazas de los bungalós de impresionantes vistas al mar y a Benidorm con el telón de fondo de Sierra Gelada. El proyecto constructivo integra un conjunto de soluciones técnicas y materiales de acabado orientados a la durabilidad de las estructuras, la eficiencia energética del edificio y la funcionalidad del espacio residencial. La orientación arquitectónica de las viviendas ha sido diseñada teniendo en cuenta la optimización de las condiciones climáticas y el aprovechamiento eficiente de los factores naturales del entorno.

Producción de agua caliente sanitaria mediante bomba de calor. Carpintería exterior de aluminio con rotura de puente térmico y doble acristalamiento. Persianas con cajón aislado del interior de la vivienda. Fachada con aislamiento térmico mejorado. Pavimentos en todas las estancias realizados en gres porcelánico modelo Forest. En las terrazas se utiliza el mismo material con acabado antideslizante. Mobiliario de cocina. Equipamiento de baños con revestimiento de paredes en cerámica Calacatta Gold de formato 33,3 × 100 cm. Platos de ducha Flow, grifería Round, inodoros suspendidos Acro Compact Rimless. Lavabos KrionShell con muebles de 61 cm. Puerta de entrada blindada con tres puntos de cierre. Puertas interiores lacadas en blanco con manillas. Armarios empotrados en dormitorios y recibidor. Ventilación técnica. Videoportero. Iluminación interior mediante luminarias LED.

En las zonas comunes también se emplea iluminación LED con sensores de presencia. El edificio está equipado con ascensores de bajo consumo energético dotados de variadores de frecuencia para optimizar el funcionamiento en arranques y paradas. En el recinto del complejo se han proyectado tres piscinas comunitarias situadas en zonas ajardinadas con vegetación. Se prevé una zona de biomecánica y calistenia, así como un área de gimnasia. Parque infantil. El complejo dispone de sistema de videovigilancia CCTV y puntos de recarga para vehículos eléctricos.

Excelente infraestructura urbana a una distancia de 10 a 15 minutos en coche. Entorno natural limpio. Colegios internacionales privados de alto nivel. Clínicas públicas y privadas. Playas de arena. Infraestructura turística y deportiva de nivel internacional. En las inmediaciones se encuentra el campo de golf Puig Campana Golf.

A solicitud del cliente, nuestros asesores inmobiliarios ofrecen asesoramiento integral sobre todos los aspectos de la adquisición de esta propiedad, así como la selección de viviendas con características similares o alternativas teniendo en cuenta los requisitos individuales del comprador, el presupuesto, la ubicación, los parámetros arquitectónicos y los objetivos de inversión.

rooms_icon
check-icon

Dormitorios : 2

check-icon

Baños : 2

check-icon

Aparcamiento : 1

check-icon

Jardín

check-icon

Piscina : Comunitaria

area_icon
check-icon

Sup. construida : 90 m2

check-icon

Sup. de terrazas : 113.59 m2

check-icon

Superficie de salón : 40 m2

energetics_icon
check-icon

Eficiencia energética : A

check-icon

Calefacción : Eléctrica

check-icon

Orientación : Sureste

options_icon
check-icon

Ascensor

check-icon

Puerta blindada

check-icon

Ventanas panorámicas

check-icon

Conserje

check-icon

Interfono

check-icon

Estado : Obra nueva

location_icon
check-icon

Vista al mar

check-icon

A la playa en coche : 15 min

data_icon
check-icon

Núm. de plantas : 3

check-icon

Año de construcción : 2027

Aeroport de Alicante - El Altet

Aeropuerto

Puerto de Alicante

Puerto

Alacant Terminal

Estación de tren

Tram Alacant Línea 1 - Cala Finestrat

Tranvía

Playa de Poniente

Platja de La Cala de Finestrat

Playa

Aqualandia

Aqua Natura

Parque acuático

Huerto del Cura

Jardín botánico

Terra Natura

Mundomar

Zoológico

Parque natural de la Sierra de Mariola

Massís del Montseny

Parque Natural de la Serra Gelada

Parque nacional

Palmeral de Elche

Misterio de Elche (14 y 15 de agosto) - Basílica de Santa Maria

Patrimonio Mundial de la UNESCO

Plaza de Toros Alicante

Santa Bárbara Castle

Les Fonts d'Algar

Museu de Microminiatures

Lugares de interés

Sierra Nevada Granada

Estación de esquí

Villaitana Golf

Las Rejas Golf

Puig Campana Golf

Club de golf

Sierra Bernia School

AIS Altea International School

Elian's British School La Nucía

Colegio privado

Centro Comercial La Marina

Centro comercial

Balneario de Archena

Balneario termal

Estadio José Rico Pérez

Estadi Olímpic Camilo Cano

Estadio principal

Benidorm Palace

Auditori de la Diputació d'Alacant

Auditori i Centre Cultural de La Nucía

Sala de conciertos

Teatre Principal d'Alacant

Teatro

Terra Mítica

Parque de atracciones

Universitat d'Alacant

Universidad

Solicitud de información adicional

Ref.: 0019AMB509