Contacto

plans_icon

Planos

plans_icon

Video

Precio

desde 457.000 €

Obra nueva

Ref.: 0017AMB530

Location

3D

Casa adosada

Alicante / Costa Blanca / La Nucia

4

4

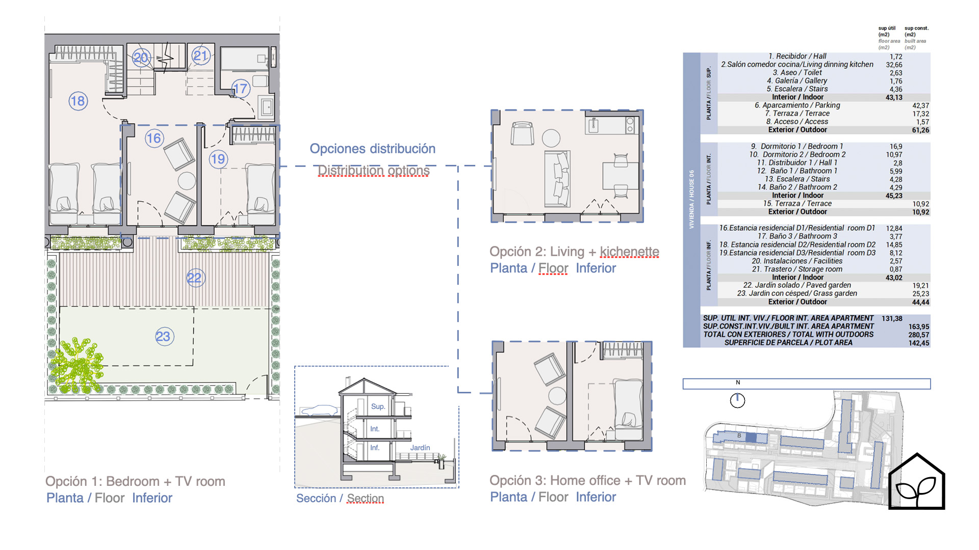
169.06 m2

142.45 m2

Amplios adosados en un exclusivo complejo residencial con vistas panorámicas al mar en La Nucía, reconocida como la capital deportiva de la región.

Viviendas de tres o cuatro dormitorios según las necesidades del propietario. El dormitorio principal dispone de baño en suite y terraza privada de 11 m². En total la vivienda cuenta con tres baños completos y un aseo de cortesía. En la planta superior, con acceso directo en coche, se encuentra un luminoso salón comedor de 34 m² con cocina americana de diseño y salida a una terraza de 17 m², además de un aseo. En este mismo nivel se ubica el parking privado para dos vehículos con una superficie de 42 m². En la planta intermedia se sitúan el dormitorio principal de 17 m² y un dormitorio doble de 11 m². En la planta inferior, además de un dormitorio y un baño ya previstos, es posible habilitar un cuarto dormitorio adicional y un salón independiente, o mantener un espacio diáfano de 21 m² con segunda cocina integrada. Desde este nivel se accede al jardín privado de 44 m².

La vivienda ofrece dos accesos independientes, uno desde la planta superior junto al salón y el aparcamiento y otro desde la planta inferior junto al jardín, aportando máxima funcionalidad y versatilidad. La planta baja puede destinarse a gimnasio privado, sala de juegos, despacho profesional o estudio creativo. El hueco de la escalera está preparado para la instalación de un ascensor neumático que conecte todas las plantas. Desde todas las terrazas, estancias y zonas exteriores se disfrutan impresionantes vistas al mar, la montaña y Benidorm.

Los interiores destacan por acabados de alta gama: cerámica de gran formato, pavimentos laminados de primera calidad, cocina integrada con electrodomésticos, sanitarios de marcas europeas líderes y carpintería exterior de altas prestaciones. Existen opciones de personalización que permiten adaptar la vivienda a su estilo de vida. Se incorporan soluciones avanzadas de aislamiento térmico y acústico, climatización energéticamente eficiente y producción de agua caliente mediante bomba de calor y energías renovables.

Los residentes disfrutan de más de 4 000 m² de zonas comunes ajardinadas. En el recinto cerrado se encuentran una piscina infinity con vistas panorámicas, jacuzzi climatizado, área infantil, pista de pádel y amplias zonas verdes.

El complejo se ubica en La Nucía, conocida como capital deportiva gracias a la Ciudad Deportiva Camilo Cano y a sus numerosas instalaciones profesionales. A tan solo 3 a 15 minutos en coche se encuentran infraestructuras urbanas consolidadas, centro deportivo olímpico y turístico, auditorio, dos campos de golf, dos colegios internacionales privados, playas de arena, la sierra de Serra d’Aitana con múltiples rutas de senderismo y ciclismo, y las cascadas de Fonts d’Algar.

A solicitud del cliente, el equipo de especialistas proporcionará asesoramiento sobre todos los aspectos relacionados con la adquisición de esta propiedad y propondrá alternativas con características similares o comparables teniendo en cuenta los requisitos individuales del comprador, el presupuesto, la ubicación, los parámetros arquitectónicos y los objetivos de inversión.

rooms_icon
check-icon

Dormitorios : 4

check-icon

Baños : 4

check-icon

Trastero : 1

check-icon

Lavadero : 1

check-icon

Aparcamiento : 1

check-icon

Jardín

check-icon

Piscina : Comunitaria

area_icon
check-icon

Sup. construida : 169.06 m2

check-icon

Superficie útil : 133.66 m2

check-icon

Sup. de terrazas : 28 m2

check-icon

Superficie de salón : 34 m2

check-icon

Sup. de parcela : 142.45 m2

energetics_icon
check-icon

Eficiencia energética : A

check-icon

Calefacción : Eléctrica

check-icon

Aire Acondicionado

check-icon

Orientación : Sur

options_icon
check-icon

Puerta blindada

check-icon

Ventanas panorámicas

check-icon

Interfono

check-icon

Estado : Obra nueva

location_icon
check-icon

Vista al mar

check-icon

A la playa en coche : 10 min

data_icon
check-icon

Núm. de plantas : 3

check-icon

Año de construcción : 2027

Aeroport de Alicante - El Altet

Aeropuerto

Puerto de Alicante

Puerto

Alacant Terminal

Estación de tren

ALSA L 528 La Nucia (U.Barranco Hondo)

Autobús

Aqualandia

Aqua Natura

Parque acuático

Huerto del Cura

Jardín botánico

Terra Natura

Mundomar

Zoológico

Parque natural de la Sierra de Mariola

Massís del Montseny

Parque Natural de la Serra Gelada

Parque nacional

Palmeral de Elche

Misterio de Elche (14 y 15 de agosto) - Basílica de Santa Maria

Patrimonio Mundial de la UNESCO

Plaza de Toros Alicante

Santa Bárbara Castle

Les Fonts d'Algar

Lugares de interés

Sierra Nevada Granada

Estación de esquí

Sierra Bernia School

AIS Altea International School

Elian's British School La Nucía

Colegio privado

Centro Comercial La Marina

Centro comercial

Balneario de Archena

Balneario termal

Estadio José Rico Pérez

Estadi Olímpic Camilo Cano

Estadio principal

Benidorm Palace

Auditori de la Diputació d'Alacant

Auditori i Centre Cultural de La Nucía

Sala de conciertos

Teatre Principal d'Alacant

Teatro

Terra Mítica

Parque de atracciones

Universitat d'Alacant

Universidad

Solicitud de información adicional

Ref.: 0017AMB530