Kontakt

plans_icon

Plantegninger

Pris

fra 709.900 €

Nybyggeri

Ref.: 0021AMB509

Location

Villa

Costa Blanca / Finestrat

3

3

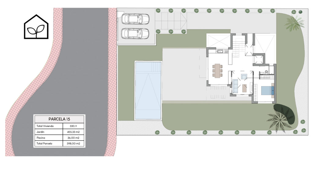
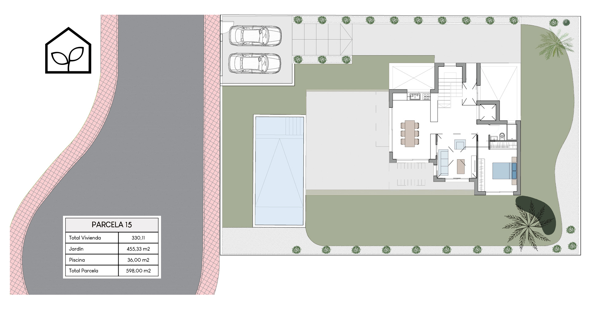
155.07 m2

519.81 m2

Moderne villaer med panoramaudsigt over havet i Balcón de Finestrat.

Tre soveværelser, hvoraf to er suiter med eget badeværelse. Det primære soveværelse på 20,35 m² har direkte udgang til en privat terrasse på 5,00 m². Rummelig stue og spiseafdeling med integreret køkken i åben planløsning på 49,64 m². Tagsolarium med et areal på 62,47 m². I alt tre badeværelser. Underetagen kan tilvælges mod en merpris på 79.000 euro og omfatter en ekstra opholdsstue på 74,22 m², to engelske patioer på 17,14 m² og 8,38 m² samt et trapperepos på 7,43 m². Projektet giver desuden mulighed for at indrette et fjerde soveværelse, et ekstra badeværelse, et bryggers og et multirum i underetagen. Elevator kan tilvælges mod en merpris på 30.000 euro. Anlagt grund på 519,81 m² med privat swimmingpool på 36,00 m².

Nyt boligprojekt med 15 villaer i området Balcón de Finestrat, et af de mest eftertragtede boligområder i den nordlige del af Costa Blanca. Beliggenheden ligger hævet mellem Benidorm og den historiske bykerne i Finestrat og skaber et boligmiljø med panoramaudsigt over Middelhavet og det omgivende naturlandskab. Projektets arkitektoniske koncept tager udgangspunkt i moderne middelhavsarkitektur med rene volumener, store glaspartier og en gennemført integration af de udendørs opholdsarealer. Facaderne kombinerer lyse mineralske overflader med natursten og skaber et markant arkitektonisk udtryk, der er tilpasset regionens klima. 

De indvendige rum er organiseret efter princippet om åben planløsning med en glidende overgang mellem boligens interiør og de udendørs opholdszoner. Store panoramiske skydedørspartier i glas skaber en visuel og funktionel forbindelse mellem opholdsarealerne og terrasserne, haven og poolområdet, hvilket forstærker oplevelsen af rumlig sammenhæng og naturligt lysindfald. Villaernes eksteriør er projekteret som en fuldgyldig forlængelse af boligen: haven, de rummelige terrasser og tagsolariumet danner et flerniveau system af udendørs arealer til afslapning og privatliv. Swimmingpoolen og den tilstødende terrasse udgør grundens centrale komposition og fremstår som et nøgleelement i den middelhavske livsstil. Interiøret er udformet i en moderne minimalistisk æstetik med fokus på funktionalitet, rene linjer og en neutral materialepalet. Planløsningen er organiseret med en tydelig opdeling mellem dagzone og natzone, hvilket sikrer en komfortabel boligdisponering. Badeværelserne er udført i en moderne arkitektonisk stil med storformat keramik, integrerede sanitetsløsninger og bruseafskærmninger i glas. 

Boligprojektet har en strategisk placering på Costa Blanca med nem adgang til regionens vigtigste transportårer. Motorvejen AP-7 giver hurtige forbindelser til Alicante, Valencia, Murcia og Barcelona, mens den regionale vej CV-70 forbinder området direkte med Finestrat og de omkringliggende zoner. Den internationale lufthavn Alicante Elche ligger cirka 50 km væk og giver bekvemme nationale og internationale flyforbindelser. I umiddelbar nærhed findes nogle af regionens største handels og servicecentre, herunder Centro Comercial La Marina, Puerta de Alicante og La Cala. Disse centre danner en veludbygget infrastruktur med butikker, restauranter og fritidstilbud. Benidorms kendte sandstrande, Playa de Levante og Playa de Poniente, ligger blot få minutter væk. Området er også kendt for sine muligheder for aktiv fritid i naturen. Bjergmassivet Puig Campana og de omkringliggende områder byder på ruter til vandring, cykling og andre udendørsaktiviteter.

Efter anmodning tilbyder specialisterne hos Novaspace professionel rådgivning i alle faser af købsprocessen og udvælger tilsvarende eller alternative ejendomme baseret på kundens individuelle krav, budget, ønsket beliggenhed, arkitektoniske præferencer og investeringsmål.

rooms_icon
check-icon

Soveværelser : 3

check-icon

Badeværelser : 3

check-icon

Parking : 1

check-icon

Have

check-icon

Swimmingpool : Nej

area_icon
check-icon

Bebygget areal : 155.07 m2

check-icon

Terrasseareal : 67.87 m2

check-icon

Stueareal : 49.64 m2

check-icon

Grundareal : 519.81 m2

energetics_icon
check-icon

Energieffektivitet : A

check-icon

Opvarmning : Elektrisk

check-icon

Aircondition

check-icon

Orientering : Nordvest

options_icon
check-icon

Elevator

check-icon

Sikkerhedsdør

check-icon

Panoramavinduer

check-icon

Dørtelefon

check-icon

Stand : Nybyggeri

check-icon

Renovated : 2028

location_icon
check-icon

Havudsigt

check-icon

To the beach by car : 9 min

data_icon
check-icon

Antal etager : 2

check-icon

Opførelsesår : 2028

Aeroport de Alicante - El Altet

Lufthavn

Puerto de Alicante

Havn

Alacant Terminal

Togstation

Tram Alacant Línea 1 - Cala Finestrat

Sporvogn

Playa de Poniente

Platja de La Cala de Finestrat

Strand

Aqualandia

Aqua Natura

Vandland

Huerto del Cura

Botanisk have

Terra Natura

Mundomar

Zoologisk have

Parque natural de la Sierra de Mariola

Massís del Montseny

Parque Natural de la Serra Gelada

Nationalpark

Palmeral de Elche

Misterio de Elche (14 y 15 de agosto) - Basílica de Santa Maria

UNESCO verdensarvssted

Plaza de Toros Alicante

Santa Bárbara Castle

Les Fonts d'Algar

Museu de Microminiatures

Seværdigheder

Sierra Nevada Granada

Skisportssted

Villaitana Golf

Las Rejas Golf

Puig Campana Golf

Golfklub

Sierra Bernia School

AIS Altea International School

Elian's British School La Nucía

Privatskole

Centro Comercial La Marina

Indkøbscenter

Balneario de Archena

Kurbad

Estadio José Rico Pérez

Estadi Olímpic Camilo Cano

Hovedstadion

Benidorm Palace

Auditori de la Diputació d'Alacant

Auditori i Centre Cultural de La Nucía

Koncertsal

Teatre Principal d'Alacant

Teater

Terra Mítica

Forlystelsespark

Universitat d'Alacant

Universitet

Anmodning om yderligere information

Ref.: 0021AMB509